Architektur
| Ausführungsstart: 2026
HEAP Real Estate AG
Im Baumgarten 5, 6247 Schötz
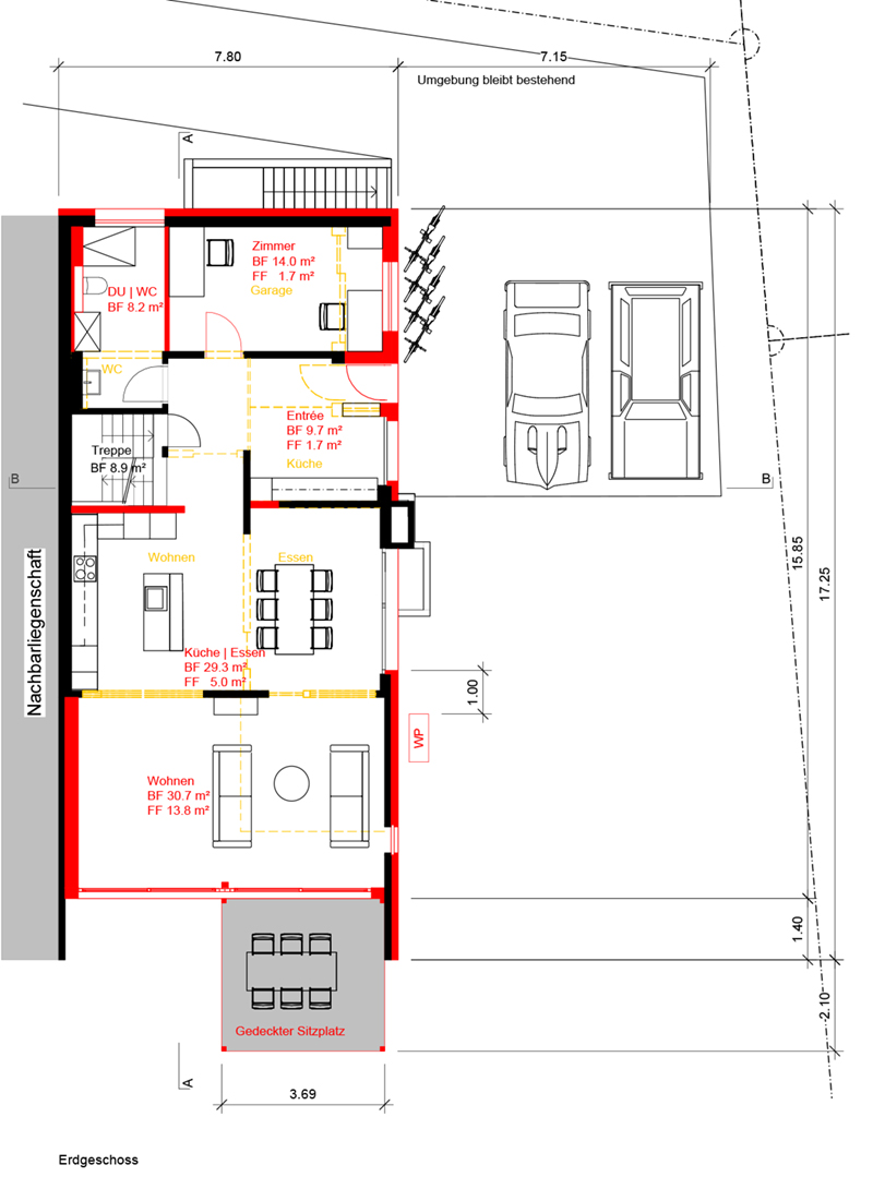
Umbau und Aufstockung EFH Im Ostergau 3, 6130 Willisau
- Erstellen der Baueingabepläne inklusive allen benötigten Formulare.
01 Erdgeschoss
|
02 Südwestfassade
|
03 Nordwestfassade
|
04 Schnitt
|
Architektur
| Ausführungsstart: 2025
FIBRAG Fin. & Ber. AG Felsbergstrasse 19, 6006 Luzern
Gewerbehaus Kasernenstrasse 3
Kasernenstrasse 3, 8184 Bachenbülach
- Erstellen der Brandschutz- und Feuerwehrpläne inklusive Objektdatenblatt und Lagerliste.
Brandschutzplan
|
Feürwehrplan
|
Architektur
| Ausführungsstart: 2025
Familie Thomas Pfarrwaller Eibenstrasse 15, 8472 Seuzach
Umbau EFH Eibenstrasse 3a, 8472 Seuzach
- Erstellen der Baueingabepläne
01 Erdgeschoss
|
02 Fassaden
|
Architektur
| Ausführungsstart: 2025
Stabilis AG, Bubenbergstrasse 11, 8045 Zürich
Mieterausbau ECAP Bern
Freiburgstrasse 130, 3008 Bern
- Grundlagepläne erstellen
- Erstellen der Baueingabepläne, Brandschutzpläne
- Ausarbeiten der Ausführungspläne
01 Schulzimmer
|
02 Pausenraum
|
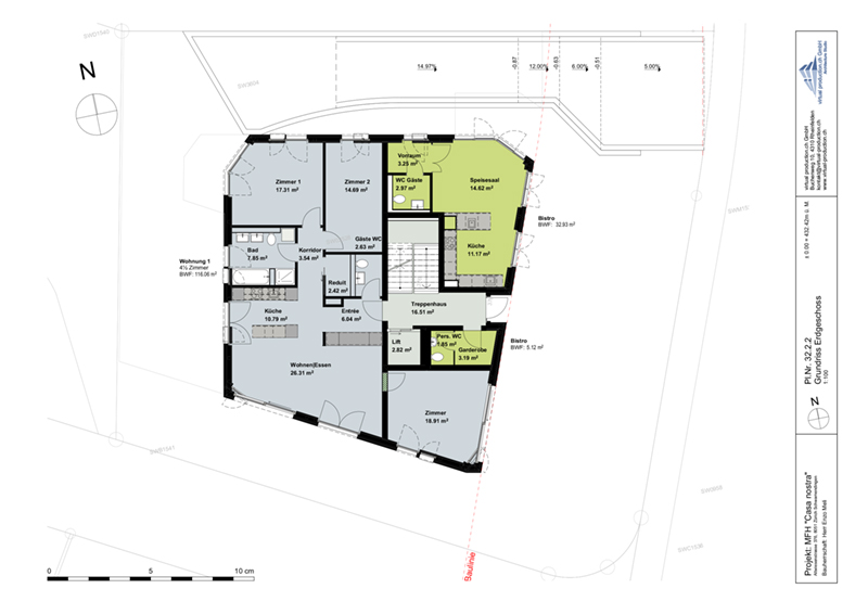
Architektur
| Ausführungsstart: 2025
Familie Enzo Meli Altwiesenstrasse 376, 8051 Zürich
MFH "Casa nostra", 8051 Zürich
- Baueingabe
- BIM Modell
- Ableitung der Ausschreibungs- und Ausführungspläne aus dem Modell
01 Perspektive
|
02 Ansicht Ost
|
03 Innenperspektive DG
|
04 Innensperspektive OG
|
05 Erdgeschoss
|
Architektur
| Ausführungsstart: 2024
Stabilis AG, Bubenbergstrasse 11, 8045 Zürich
Baueingabe ECAP Luzern
Sternmattstrasse 12a, 6005 Luzern
- Erstellen der Baueingabepläne, Brandschutzpläne
Architektur
| Ausführungsstart: 2024
Stabilis AG, Bubenbergstrasse 11, 8045 Zürich
Mieterausbau Capital Group Brandschenkestrasse 5, 8001 Zürich
- Grundlagepläne erstellen
- Erstellen der Baueingabepläne
- Ausführungsplanung, Detailplanung, Innenausbauplanung
01 Sitzungszimmer
|
02 Arbeitsplatz
|
03 Pausenraum
|
Architektur
| Ausführungsstart: 2023
Stabilis AG Bubenbergstrasse 11, 8045 Zürich
Sanierung Liegenschaft Marktgasse 22 und
Umbau Ladengeschäft MANGO Marktgasse 22, 8011 Bern
Baueingabe:
- Grundriss-, Schnitt- und Fassadenpläne
- Brandschutzpläne
Ausführungspläne:
- Grundriss- und Schnittpläne 1:50
- Detailpläne 1:10 / 1:20
Architektur
| Ausführungsstart: 2023
Stiftung Maria Lourdes Seebacherstrasse 3, 8052 Zürich
Neubau MFH Seebacherstrasse 7 / 11, 8052 Zürich
- Machbarkeitsstudie
- Vorprojekt
- Baueingabe
- Bim Modell
- Ableitung der Ausschreibungs- und Ausführungspläne aus dem Modell
00 Perspektive
|
01 Wohnung DG
|
02 Wohnung 2OG
|
03 Wohnung 1OG
|
virtual production.ch GmbH | Buchenweg 10, 4310 Rheinfelden | T: +41 (0)76 338 99 66 | kontakt(at)virtual-production.ch